Fabricated Downspout Boots
Fabricated Boot Overview

When properly designed and constructed, fabricated steel, aluminum and stainless steel downspout boots serve as a satisfactory alternative to cast iron. J.R. Hoe produces fabricated downspout boots with a flow-efficient transition from the body of the downspout boot down through the bottom outlet and into the drainage system. With the same industry-leading quality, performance and aesthetic appeal of J.R. Hoe cast iron downspout boots, we supply fabricated downspout boots in various materials with more than 180 powder coating color options.

What makes J.R. Hoe fabricated downspout boots different? Using proper fabrication methods and an emphasis on flow-efficient design, J.R. Hoe fabricated boots deliver superior performance and unparalleled quality. To learn more, check out our blog post: Fabricated Downspout Boots – Proper Design and Construction.

  
  
Examples - Custom Fabricated

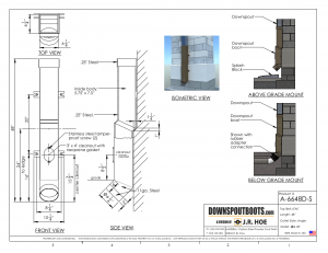
Click above image to see full size

Materials
Carbon Steel (Powder Coated): Powder coated carbon steel is recommended by  J.R. Hoe for its durability, high percentage of recycled content and domestic sourcing. Section thickness ranges from 12ga to ¼” material. Standard powder coat finish offered in more than 180 colors.
 
Aluminum: With its high strength to weight ratio and excellent corrosion resistance, fabricated aluminum downspout boots are constructed with 12ga to ¼” material. Powder coating is optional.
 
Stainless: Drawbacks to stainless steel include the lack of domestically produced material and lower levels of recycled content. Stainless steel downspout boots are constructed using 12ga to ¼”material with the option of powder coating.
 
J.R. Hoe is an AISC Certified supplier of carbon steel, aluminum and stainless steel fabrications. As an environmentally conscious American manufacturer we promote the use of domestic materials and sustainable manufacturing practices.
 
 
Applications
Fabricated downspout boots are especially well suited for downspout connections that require customor non-standard sizing and configurations. Listed below are several conditions that may require a custom or modified downspout boot:
  • Non-uniform wall profiles may require a boot with multiple turns or bends.
  • Variable distance between building wall and drain pipe requiring custom offset dimensions.
  • Special wall conditions that call for a custom designed mounting feature.
  • Atypical underground piping configurations requiring specially designed downspout boot outlets.
  • Lateral transitions of the downspout boot on the building wall.
 
Get A Quote

Please reference above selection guide to provide information in the comments below.